Myページ
前へ
次へ
  • 区画図

  • ダイニング

  • ダイニングキッチン

  • キッチン

  • 中古一戸建

世田谷区瀬田3丁目

10,500万円

東京都世田谷区瀬田3丁目

東急田園都市線「用賀」駅 徒歩13分

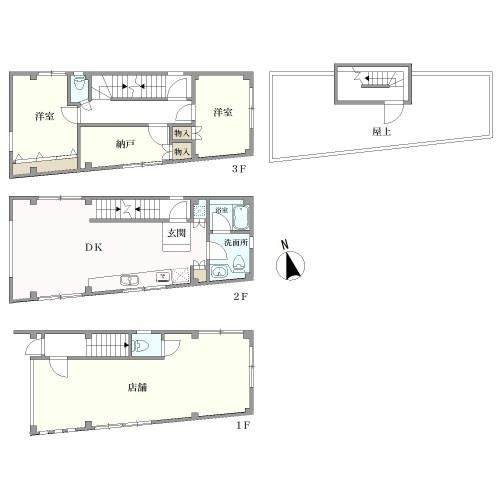
間取り
2DK+S
建物面積
127.34m²
土地面積
56.2m²
築年月
2002年10月
9:30~18:00

物件特徴

立地・環境

  • 複数路線利用可
  • 前面道路5m以上

物件特徴

  • 土地50㎡以上
  • 3階建以上

間取 2SDK+店舗 家具・調度品は販売価格に含まれません。写真は2026年3月撮影。S=納戸 間取り図の家具は参考です。 第3種高度地区、世田谷区環状八号線瀬田・上野毛・野毛地区沿道地区計画、環状八号線瀬田・上野毛・野毛地区地区街づくり計画

間取り

間取
間取り
2DK+S
建物面積
127.34m²(38.52坪)
土地面積
56.2m²(17坪)
間取り詳細

物件概要

物件番号:S15jg250777  物件情報の見方

所在地
交通 東急田園都市線用賀」駅 徒歩13分
東急大井町線上野毛」駅 徒歩13分
価格
建物面積 127.34m²(38.52坪)登記
土地面積 56.2m²(17坪)登記
間取り 2DK+S
建築時期 2002年10月
駐車場
階層 地上3階建
構造 鉄骨造
接道方向 一方、公道 方向:西 幅員:8.3m
建ぺい率/容積率 建ぺい率 80%・容積率 300%
用途地域 近隣商業
都市計画 市街化
地目 宅地
現況 居住中
引渡し 相談
国土法届出 不要
取引態様 媒介
土地権利 所有権
更新日:
2026年05月16日
次回更新予定日:
2026年05月17日
  • ※掲載内容と現状が異なる場合には現状を優先いたします。
  • ※仲介物件の場合は、価格の他に仲介手数料が必要です。(仲介手数料には消費税及び地方消費税がかかります。)
  • ※掲載の物件は売却済・売却中止・価格変更となる場合もございますので、予めご了承ください。

三菱地所ハウスネット株式会社 本社:東京都新宿区北新宿2-21-1 新宿フロントタワー32F
国土交通大臣(6)第6019号 所属団体:(一社) 不動産流通経営協会会員 (公社) 首都圏不動産公正取引協議会加盟

地図・周辺情報

※実際の物件所在地とは異なる場合や最新情報に更新されていない場合がございます。

お問い合わせ

三菱地所グループ各社の総合力で、
お客様を手厚くサポート
住み替えは三菱地所の住まいリレーに
お任せください。

街づくりから不動産管理まで、住まいにまつわるあらゆる事業を展開する三菱地所グループ。
三菱地所の住まいリレーでは、全国に広がる三菱地所グループ各社の総合力を活かし最適なサービスをご提案します。

人を、想う力。街を、想う力。三菱地所グループ 数字で見る住まいリレーの売却力 担当者の対応に満足91.2% 提案が的確で分かりやすい90.5%
三菱地所のレジデンスクラブ

入会費・年会費無料三菱地所のレジデンスクラブ

この物件を、三菱地所ハウスネットを通じて購入いただくと、「三菱地所のレジデンスクラブ」会員として、ご成約者様向けのプレミアムな各種サービスや特典をご利用いただくことができます

近隣エリアの価格帯が似ている物件をもっと見る

近隣エリアの広さが似ている物件情報をもっと見る

近隣エリアの物件情報をもっと見る

よく比較される物件情報をもっと見る

この物件に関連するタグ

他の条件で再検索

Search

不動産の種類から探す

STEP01 不動産の種類を選択(複数選択可)

STEP02 検索方法を選択

関連情報

お問い合わせ

お気に入り物件の確認はもちろん、検索条件も自動保存されるので再検索もスムーズに行えます。
また、お客様の関心に合わせた物件情報を随時メールでお届けいたします。

世田谷区瀬田3丁目に関するよくある質問

Q

購入する不動産の金額はどのくらいが目安になりますか?

A

住宅ローンを利用する場合、一般的に借入金額の目安は年収の6~7倍と言われています。しかし、ご自身の家計状況(毎月の支出、貯蓄額、家族構成など)や将来のライフプランなどを総合的に考慮して、無理のない資金計画を立てることが大切です。

「三菱地所の住まいリレー」では、住宅ローンの利用についてもご相談を承っています。ローンの利用に対して不安を感じている方に対しては、三菱地所ハウスネットの豊富な取引実績や幅広いネットワークを活用したアドバイスはもちろん、金融機関に対する「住宅ローン事前審査」のお申し込みも受け付けております。また、物件価格や返済期間などの簡単な入力で、住宅購入時に気になるローン返済額の概算を確認できます。住まいの購入検討時にお役立てください。

住宅ローンシミュレーション

Q

一戸建てを買う時にかかる主な費用は何ですか?

A

主に仲介手数料、売買契約書に貼付する印紙代、登記費用、不動産取得税、固定資産税等の日割精算額などが挙げられます。また、住宅を建築する目的で住宅ローンを利用する場合は、ローン事務手数料や保証料、ローン契約書に貼付する印紙代、抵当権の設定登記費用などが必要となるほか、土地の測量を買主が行う場合には測量費用が必要となるケースがあります。

「三菱地所の住まいリレー」では、お客様ごとの概算書を作成して丁寧にご説明しています。住宅ローンをご利用の場合も、担当者が利用方法や手続きの進め方などについて適切にご説明いたしますのでご安心ください。

世田谷区のエリア情報

東京都世田谷区は、武蔵野台地上に広がる緑豊かな地域です。世田谷城址やボロ市など、歴史的資産が残り、大正期以降は郊外の住宅地として発展を遂げ、成城学園や用賀といった高級住宅地も形成されました。駒沢オリンピック公園や砧公園といった大規模公園、多摩川沿いのサイクリングコース、下北沢の演劇・音楽文化、経堂や千歳烏山の商店街など、多様な魅力が共存しています。蘆花恒春園では、四季折々の風景を楽しむことができます。

世田谷区のエリア情報