8,880万円
◆シャッター付車庫があります。ガレージとしてご利用可能です。
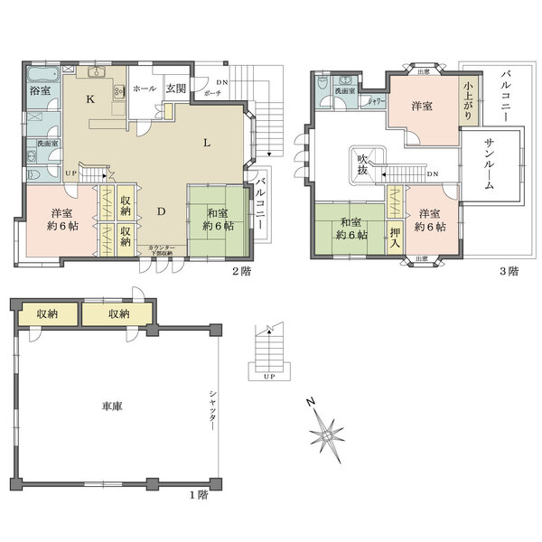
◆鉄骨・木造3階建
◆5LDK シャッター付車庫(車種による)
◆平成4年3月築
◆土地面積:148.91m2(45.04坪)別途私道負担面積33.24m2(10.05坪)有り
◆建物面積:246.92m2(74.69坪)
◆オール電化
◆サンルーム有り(3階部分)
◆トイレ2カ所有り(2階・3階部分)
◆L字型キッチン

5LDK
土地面積:148.91m²(45.04坪)
建物面積:246.92m²(74.69坪)

担当
堀内 裕司
物件番号: D35X31105
営業時間:9:30~18:00
定休日:毎週水曜日および第1、第3火曜日





【趣味を楽しむためのゆとりある空間】
約74坪の建物は、5LDKのゆとりある間取りで、ワークスペースやコレクションルーム、音楽室など多彩な使い方が可能です。
3階には サンルームを設置。明るい光の中で植物を育てたり、読書やコーヒータイムを楽しむのに最適です。
シャッター付き車庫は、愛車をしっかり守れるだけでなく、バイクやアウトドア用品の保管にも便利となっています。
キッチンは使いやすい L字型で、料理好きの方にも嬉しい仕様です。
さらに、トイレは2カ所設置されており、趣味スペースを増やしても生活動線は快適です。
「自分だけの空間を持ちたい」「趣味を思い切り楽しみたい」方におすすめの一邸。ぜひ現地でご体感ください。

担当
堀内 裕司
物件番号: D35X31105
営業時間:9:30~18:00
定休日:毎週水曜日および第1、第3火曜日
更新日:2026年03月12日 次回更新予定日:2026年03月15日
三菱地所ハウスネット株式会社
本社:東京都新宿区北新宿2-21-1 新宿フロントタワー32F
国土交通大臣(6)第6019号 所属団体:(一社) 不動産流通経営協会会員 (公社) 首都圏不動産公正取引協議会加盟

担当
堀内 裕司
物件番号: D35X31105
営業時間:9:30~18:00
定休日:毎週水曜日および第1、第3火曜日
ご購入
ご購入
ご購入
確かな実績ときめ細かい対応で、三菱地所の住まいリレーが
不動産のご売却をサポートいたします。まずはお気軽にご相談ください。

適合箇所は引渡日から1年間、
「設備補修・交換」が保証されます。

住宅設備・給排水管の検査済・長期保証付物件を、安心してご購入いただけます。

※設備の写真については、全てイメージ写真です。実際のものとは異なります。
「リノレジ」とは、三菱地所レジデンスが安心・安全と上質さにこだわって再生したリノベーションマンションブランドで、ハードはもちろんのこと、お客様の入居後の安心に応えるアフターサービスなどのソフトも充実した「リノレジ品質」を備えたマンションです。
認定保証中古制度
「レジデンスケア」とは、新築後10年間の住宅設備機器の保証延長サービス、専有部分の不具合対応サービス、 長期点検・メンテナンスサービスを提供する三菱地所レジデンスの長期住宅サービスです。 認定保証中古制度利用により、レジデンスケアの保証サービスを 継承 することができます。
入会費・年会費無料
三菱地所のレジデンスクラブ
「三菱地所のレジデンスクラブ」は、三菱地所グループの住宅サービスをご利用いただいているお客様の会員組織です。
三菱地所ハウスネットでご成約いただいたお客様は、安心・安全で上質な「くらし」に関する様々なサービスや、ご成約者様向けのプレミアムな特典をご利用いただくことができます。









