物件番号:H00794400052
- NEW 4/02
- マンション
ブリリアンクラス高円寺
230,000円
東京都杉並区高円寺北2丁目
中央本線「高円寺」駅 徒歩2分
- 築年月
- 2023年08月
- 階数
- 12階
- 総戸数
- 85戸
物件特徴
立地・環境
-
駅徒歩5分以内
-
南向き
物件特徴
-
宅配ボックス
-
モニタ付インターホン
- エレベーター
- オートロック
- 防犯カメラ
住戸特徴
-
ペット相談可
-
楽器演奏相談可
-
2階以上
-
浴室乾燥機
-
バス・トイレ別
-
ウォークインクローゼット
- 光インターネット
- フローリング(一部含む)
- 追焚機能浴室
- 温水洗浄便座
- シューズインクローゼット
- BS
- CS
間取り
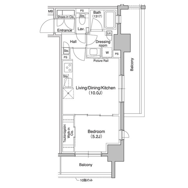
- 間取り
- 1LDK
- 専有面積
- 40.56m²(12.26坪)
- 間取り詳細
- LDK(10帖)
- 洋室(5.2帖)
物件概要
物件番号:H00794400052 物件情報の見方
| 物件名 | ブリリアンクラス高円寺 |
|---|---|
| 所在地 |
東京都杉並区高円寺北2丁目
地図・周辺情報
|
| 交通 |
中央本線「高円寺」駅 徒歩2分 |
| 賃料 | 230,000円 |
| 管理費・共益費 | 15,000円 |
| 敷金 | 1ヶ月 |
| 礼金 | 1ヶ月 |
| 鍵交換費用 | 契約時必須/33,000円(税込) |
| 契約種類 | 普通賃貸借 2年 |
| 損害保険等 | 火災保険 加入必須 |
| 更新料 | 新賃料の1か月 |
| 保証会社 | 利用必須 SBIギャランティ 初年度保証料:賃料等合計額の40%(最低保証料2万円)2年目以降:1年毎8千円 |
| 利用の制限 | ペット:相談可 (小型犬・猫計2匹迄/敷金1か月積増) 楽器:相談可 (10~19時/連続演奏1時間以内/消音機能付限定) 民泊:不可 |
| 専有面積 | 40.56m²(12.26坪) |
| 間取り | 1LDK |
| 間取り詳細 | LDK(10帖)、洋室(5.2帖) |
| 方位 | 南向き |
| 築年月 | 2023年08月 |
| 総戸数 | 85戸 |
| 建物構造 | 鉄筋コンクリート造(RC) |
| 建物規模 | 地上13階 |
| 所在階 | 12階 |
| 駐車場 | 無 |
| 入居時期 | 2026年07月上旬 |
| 取引態様 | 貸主 |
| 設備・その他 | 浴室乾燥機 バス・トイレ別 光インターネット フローリング(一部含む) 追焚機能浴室 温水洗浄便座 シューズインクローゼット |
| 備考 | 駆付けサポート24借主加入 保証会社未使用時敷金2か月 ペット・楽器相談(諸条件弊社募集図面要確認) 民泊不可 鍵交換必須/退去時:室内清掃・エアコン洗浄費借主負担 付属施設空状況要確認 |
- 更新日:
- 2026年04月04日
- 次回更新予定日:
- 2026年04月05日
- ※掲載内容と現状が異なる場合には現状を優先いたします。
- ※仲介物件の場合は、価格の他に仲介手数料が必要です。(仲介手数料には消費税及び地方消費税がかかります。)
- ※掲載の物件は売却済・売却中止・価格変更となる場合もございますので、予めご了承ください。
三菱地所ハウスネット株式会社
本社:東京都新宿区北新宿2-21-1 新宿フロントタワー32F
国土交通大臣(6)第6019号 所属団体:(一社) 不動産流通経営協会会員 (公社) 首都圏不動産公正取引協議会加盟
地図・周辺情報
※実際の物件所在地とは異なる場合や最新情報に更新されていない場合がございます。