318,000円
共用施設(ゴルフレンジ(
「ザ・パークハビオ市ヶ谷イースト」を特設サイトにて詳しくご紹介しています。

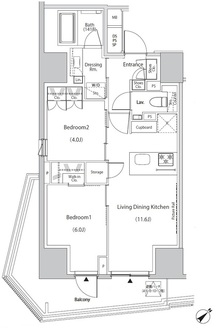
1LDK
専有面積:53.87m²(16.29坪)
物件番号: R3430638r903
受付時間:9:30~17:30
定休日:土・日・祝日










このマンションは
三菱地所グループが手がけた物件です
物件番号: R3430638r903
受付時間:9:30~17:30
定休日:土・日・祝日
更新日:2026年01月11日 次回更新予定日:2026年01月12日
三菱地所リアルエステートサービス株式会社
本社:東京都千代田区大手町一丁目9番2号 大手町フィナンシャルシティ グランキューブ11階
国土交通大臣(14)第1512号 所属団体:(一社) 不動産協会 (一社) 不動産流通経営協会 (公社) 首都圏不動産公正取引協議会
物件番号: R3430638r903
受付時間:9:30~17:30
定休日:土・日・祝日
確かな実績ときめ細かい対応で、三菱地所の住まいリレーが
不動産の賃貸活用をサポートいたします。まずはお気軽にご相談ください。
三菱地所レジデンスの
リノベーション
「三菱地所レジデンスのリノベーション」とは、三菱地所レジデンスが売主となり、
中古マンションに新築のノウハウを生かした
メンテナンス・リフォーム・自社基準のチェックなどを行い、
アフターサービスを付加し、バリューアップしたのちに販売する同社の事業名称です。













