価格:- 間取り:- 築年:- 建物面積:- 土地面積:- 徒歩分:- 更新情報:-
隣の駅にも条件に合う物件があります

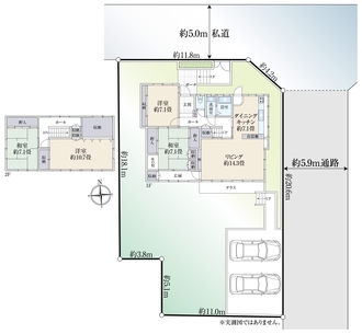
神戸市須磨区白川台2丁目 2号地
地下鉄西神山手線「名谷」
3,680万円 105.89㎡

横浜市南区大岡1丁目
横浜市ブルーライン「弘明寺」徒歩7分
830万円 59.28㎡

船橋市田喜野井2丁目
京成電鉄松戸線「薬園台」徒歩24分
4,880万円 96.05㎡

西宮市今津野田町
阪神本線「久寿川」徒歩8分
3,650万円 118.44㎡

長久手市武蔵塚
リニモ「長久手古戦場」徒歩6分
20,000万円 168.45㎡

さいたま市北区植竹町1丁目
東武野田線「北大宮」徒歩7分
4,380万円 111.52㎡

西宮市甲子園網引町
阪神本線「甲子園」徒歩9分
4,080万円 85.59㎡

藤沢市辻堂1丁目
東海道本線「辻堂」徒歩7分
6,280万円 99.36㎡

名古屋市緑区姥子山4丁目
名鉄名古屋本線「中京競馬場前」徒歩13分
3,380万円 112.94㎡

横浜市港北区綱島東6丁目
東急新横浜線「新綱島」徒歩9分
5,600万円 78.91㎡

京都市右京区花園木辻南町
山陰本線「花園」徒歩9分
6,980万円 228.84㎡

川崎市中原区新城2丁目
南武線「武蔵新城」徒歩7分
5,480万円 85.27㎡

川崎市宮前区宮崎5丁目
東急田園都市線「宮崎台」徒歩10分
9,800万円 144.70㎡

名古屋市昭和区山脇町1丁目
地下鉄鶴舞線「荒畑」徒歩9分
5,280万円 82.79㎡

武蔵野市吉祥寺南町3丁目
中央本線「吉祥寺」徒歩14分
17,480万円 156.94㎡
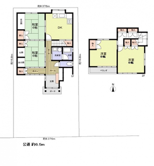
周辺地域にはこんな物件があります

豊中市上野西2丁目
阪急宝塚線「豊中」徒歩17分
4,180万円 115.55㎡

芦屋市山手町
阪急神戸線「芦屋川」徒歩12分
6,900万円 190.04㎡

足立区青井1丁目
東武伊勢崎線「五反野」徒歩10分
3,980万円 68.00㎡

豊中市末広町3丁目
阪急宝塚線「豊中」徒歩7分
4,380万円 106.18㎡

大田区久が原5丁目
東急池上線「千鳥町」徒歩13分
10,480万円 92.45㎡

名古屋市守山区川北町
ガイドウェイバス志段味線「川村」徒歩5分
2,780万円 97.19㎡

川崎市高津区北見方1丁目
東急田園都市線「高津」徒歩13分
6,980万円 104.73㎡

豊中市二葉町1丁目
阪急神戸線「神崎川」徒歩14分
1,980万円 55.79㎡

川崎市川崎区中島2丁目
京急大師線「港町」徒歩12分
4,280万円 68.64㎡

市川市大和田5丁目
都営新宿線「本八幡」徒歩24分
6,500万円 262.85㎡

世田谷区中町1丁目
東急大井町線「等々力」徒歩6分
27,000万円 248.25㎡

葛飾区西新小岩5丁目
総武本線「新小岩」徒歩19分
4,580万円 81.13㎡

福岡市中央区谷2丁目
地下鉄七隈線「桜坂」徒歩8分
9,800万円 255.33㎡

さいたま市緑区大字大門
埼玉高速鉄道「浦和美園」徒歩9分
3,980万円 98.74㎡

西宮市甲子園口3丁目
東海道本線「甲子園口」徒歩5分
5,280万円 124.49㎡