176,000万円
176,000万円

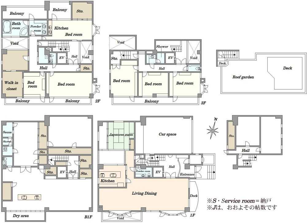
8LDK+S
土地面積:397.68m²(120.29坪)
建物面積:692.3m²(209.42坪)
物件番号: S13F61BY018
営業時間:9:30~18:00
定休日:毎週水曜日および第1、第3火曜日






物件番号: S13F61BY018
営業時間:9:30~18:00
定休日:毎週水曜日および第1、第3火曜日
更新日:2025年11月25日 次回更新予定日:2025年11月26日
三菱地所ハウスネット株式会社
本社:東京都新宿区北新宿2-21-1 新宿フロントタワー32F
国土交通大臣(6)第6019号 所属団体:(一社) 不動産流通経営協会会員 (公社) 首都圏不動産公正取引協議会加盟
物件番号: S13F61BY018
営業時間:9:30~18:00
定休日:毎週水曜日および第1、第3火曜日
ご購入
ご購入
ご購入
確かな実績ときめ細かい対応で、三菱地所の住まいリレーが
不動産のご売却をサポートいたします。まずはお気軽にご相談ください。

適合箇所は引渡日から1年間、
「設備補修・交換」が保証されます。

住宅設備・給排水管の検査済・長期保証付物件を、安心してご購入いただけます。

※設備の写真については、全てイメージ写真です。実際のものとは異なります。
「リノレジ」とは、三菱地所レジデンスが安心・安全と上質さにこだわって再生したリノベーションマンションブランドで、ハードはもちろんのこと、お客様の入居後の安心に応えるアフターサービスなどのソフトも充実した「リノレジ品質」を備えたマンションです。
認定保証中古制度
「レジデンスケア」とは、新築後10年間の住宅設備機器の保証延長サービス、専有部分の不具合対応サービス、 長期点検・メンテナンスサービスを提供する三菱地所レジデンスの長期住宅サービスです。 認定保証中古制度利用により、レジデンスケアの保証サービスを 継承 することができます。
入会費・年会費無料
三菱地所のレジデンスクラブ
「三菱地所のレジデンスクラブ」は、三菱地所グループの住宅サービスをご利用いただいているお客様の会員組織です。
三菱地所ハウスネットでご成約いただいたお客様は、安心・安全で上質な「くらし」に関する様々なサービスや、ご成約者様向けのプレミアムな特典をご利用いただくことができます。









