物件番号:H00804000012
- NEW 4/27
- マンション
ザ・パークハビオ文京目白台プレイス
167,000円
東京都文京区目白台2丁目
東京メトロ有楽町線「護国寺」駅 徒歩5分
- 築年月
- 2024年03月
- 階数
- 1階
- 総戸数
- 55戸
物件特徴
立地・環境
-
複数路線利用可
-
駅徒歩5分以内
物件特徴
-
宅配ボックス
-
モニタ付インターホン
- エレベーター
- オートロック
- 防犯カメラ
住戸特徴
-
ペット相談可
-
楽器演奏相談可
-
浴室乾燥機
-
バス・トイレ別
-
ウォークインクローゼット
- 光インターネット
- フローリング(一部含む)
- 追焚機能浴室
- 温水洗浄便座
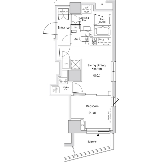
間取り
- 間取り
- 1LDK
- 専有面積
- 35.21m²(10.65坪)
- 間取り詳細
- LDK(8帖)
- 洋室(5.3帖)
物件概要
物件番号:H00804000012 物件情報の見方
| 物件名 | ザ・パークハビオ文京目白台プレイス |
|---|---|
| 所在地 |
東京都文京区目白台2丁目
地図・周辺情報
|
| 交通 |
東京メトロ有楽町線「護国寺」駅 徒歩5分 東京メトロ副都心線「雑司が谷」駅 徒歩12分 都電荒川線「鬼子母神前」駅 徒歩13分 |
| 賃料 | 167,000円 |
| 管理費・共益費 | 15,000円 |
| 敷金 | 1ヶ月 |
| 礼金 | 1ヶ月 |
| 鍵交換費用 | 契約時必須/33,000円(税込) |
| 契約種類 | 普通賃貸借 2年 |
| 損害保険等 | 火災保険 加入必須 |
| 更新料 | 新賃料の1か月 |
| 保証会社 | 利用必須 ジェイリース・ウェルオンソリューションズ 初年度保証料:賃料等合計額の50% 毎月:330円 2年目 |
| 利用の制限 | ペット:相談可 (小型犬・猫計2匹迄/敷金1か月積増) 楽器:相談可 (10~20時/連続演奏1時間以内/消音機能付限定) 民泊:不可 |
| 専有面積 | 35.21m²(10.65坪) |
| 間取り | 1LDK |
| 間取り詳細 | LDK(8帖)、洋室(5.3帖) |
| 方位 | 北西向き |
| 築年月 | 2024年03月 |
| 総戸数 | 55戸 |
| 建物構造 | 鉄筋コンクリート造(RC) |
| 建物規模 | 地上10階地下1階 |
| 所在階 | 1階 |
| 駐車場 | 無 |
| 入居時期 | 2026年06月下旬 |
| 取引態様 | 貸主 |
| 設備・その他 | 浴室乾燥機 バス・トイレ別 光インターネット フローリング(一部含む) 追焚機能浴室 温水洗浄便座 |
| 備考 | 近隣工事有 駆付けサポート24借主加入 保証会社未使用時敷金2か月 ペット・楽器相談(諸条件弊社募集図面要確認) SOHO使用応相談(敷金1か月積増) 民泊不可 鍵交換必須/退去時:室内清掃・エアコン洗浄費借主負担 付属施設空状況要確認 |
- 更新日:
- 2026年04月28日
- 次回更新予定日:
- 2026年04月29日
- ※掲載内容と現状が異なる場合には現状を優先いたします。
- ※仲介物件の場合は、価格の他に仲介手数料が必要です。(仲介手数料には消費税及び地方消費税がかかります。)
- ※掲載の物件は売却済・売却中止・価格変更となる場合もございますので、予めご了承ください。
三菱地所ハウスネット株式会社
本社:東京都新宿区北新宿2-21-1 新宿フロントタワー32F
国土交通大臣(6)第6019号 所属団体:(一社) 不動産流通経営協会会員 (公社) 首都圏不動産公正取引協議会加盟
地図・周辺情報
※実際の物件所在地とは異なる場合や最新情報に更新されていない場合がございます。