170,000円
ペット飼育・楽器演奏応相談 エアコン設置済

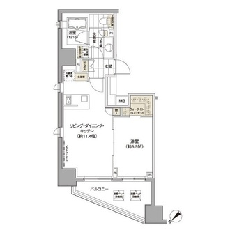
1K
専有面積:24.44m²(7.39坪)
物件番号: H00421600136
営業時間:10:00~17:00
定休日:毎週水・日曜日








このマンションは
三菱地所グループが手がけた物件です
物件番号: H00421600136
営業時間:10:00~17:00
定休日:毎週水・日曜日
更新日:2026年02月14日 次回更新予定日:2026年02月15日
三菱地所ハウスネット株式会社
本社:東京都新宿区北新宿2-21-1 新宿フロントタワー32F
国土交通大臣(6)第6019号 所属団体:(一社) 不動産流通経営協会会員 (公社) 首都圏不動産公正取引協議会加盟
物件番号: H00421600136
営業時間:10:00~17:00
定休日:毎週水・日曜日
確かな実績ときめ細かい対応で、三菱地所の住まいリレーが
不動産の賃貸活用をサポートいたします。まずはお気軽にご相談ください。
三菱地所レジデンスの
リノベーション
「三菱地所レジデンスのリノベーション」とは、三菱地所レジデンスが売主となり、
中古マンションに新築のノウハウを生かした
メンテナンス・リフォーム・自社基準のチェックなどを行い、
アフターサービスを付加し、バリューアップしたのちに販売する同社の事業名称です。



