280,000円

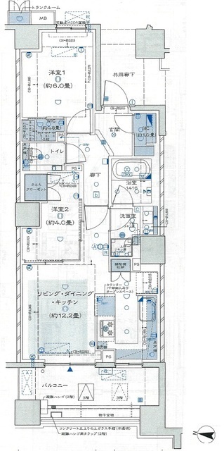
2LDK
専有面積:55.28m²(16.72坪)
物件番号: R3430532r202
受付時間:9:30~17:30
定休日:土・日・祝日










このマンションは
三菱地所グループが手がけた物件です
この物件にはマンション専用ページをご用意しております。
売出し・賃貸住戸情報の他、無料売却・賃料査定が簡単にお申込みいただけます。
物件番号: R3430532r202
受付時間:9:30~17:30
定休日:土・日・祝日
更新日:2026年02月21日 次回更新予定日:2026年02月22日
三菱地所リアルエステートサービス株式会社
本社:東京都千代田区大手町一丁目9番2号 大手町フィナンシャルシティ グランキューブ11階
国土交通大臣(14)第1512号 所属団体:(一社) 不動産協会 (一社) 不動産流通経営協会 (公社) 首都圏不動産公正取引協議会
物件番号: R3430532r202
受付時間:9:30~17:30
定休日:土・日・祝日
確かな実績ときめ細かい対応で、三菱地所の住まいリレーが
不動産の賃貸活用をサポートいたします。まずはお気軽にご相談ください。
三菱地所レジデンスの
リノベーション
「三菱地所レジデンスのリノベーション」とは、三菱地所レジデンスが売主となり、
中古マンションに新築のノウハウを生かした
メンテナンス・リフォーム・自社基準のチェックなどを行い、
アフターサービスを付加し、バリューアップしたのちに販売する同社の事業名称です。

















