Myページ
ザ・パークハビオSOHO市谷左内町の間取図
  • NEW 4/09
  • マンション

ザ・パークハビオSOHO市谷左内町

186,700

東京都新宿区市谷左内町

総武・中央緩行線「市ケ谷」駅 徒歩4分

築年月
2026年05月
階数
4階
総戸数
72戸
10:00~17:00

物件特徴

立地・環境

  • 複数路線利用可
  • 駅徒歩5分以内

物件特徴

  • 新築
  • 宅配ボックス
  • モニタ付インターホン
  • エレベーター
  • オートロック
  • 防犯カメラ

住戸特徴

  • ペット相談可
  • 楽器演奏相談可
  • 2階以上
  • 浴室乾燥機
  • バス・トイレ別
  • 光インターネット
  • エアコン
  • フローリング(一部含む)
  • CATV
  • 追焚機能浴室
  • 温水洗浄便座
  • BS
  • CS

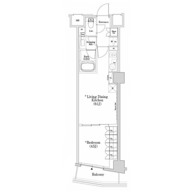
間取り

ザ・パークハビオSOHO市谷左内町の間取図
間取り
1LDK
専有面積
33.57m²(10.15坪)
間取り詳細
LDK(9.1帖)
洋室(4.5帖)

物件概要

物件番号:H00854700065 物件情報の見方

物件名 ザ・パークハビオSOHO市谷左内町
所在地
東京都新宿区市谷左内町 地図・周辺情報
交通 総武・中央緩行線「市ケ谷」駅 徒歩4分
総武・中央緩行線「市ケ谷」駅 徒歩4分
東京メトロ南北線「市ケ谷」駅 徒歩3分
賃料 186,700円
管理費・共益費 20,000円
その他費用 その他:月額3300円
敷金 1ヶ月
礼金 1ヶ月
契約種類 定期建物賃貸借 (2年)
損害保険等 火災保険 加入必須
更新料 なし
保証会社 利用必須 ジェイリース・ウェルオンソリューションズ 初年度保証料:賃料等合計額の50% 毎月:330円 2年目
利用の制限 ペット:相談可 (小型犬・猫計2匹迄/敷金1か月積増) 楽器:相談可 (10~20時/連続演奏1時間以内/消音機能付限定) 民泊:不可
専有面積 33.57m²(10.15坪)
間取り 1LDK
間取り詳細 LDK(9.1帖)、洋室(4.5帖)
方位 北東向き
築年月 2026年05月
総戸数 72戸
建物構造 鉄筋コンクリート造(RC)
建物規模 地上6階
所在階 4階
駐車場
入居時期 2026年06月上旬
取引態様 貸主
設備・その他 浴室乾燥機 バス・トイレ別 光インターネット エアコン フローリング(一部含む) 追焚機能浴室 温水洗浄便座 
備考 引越日は引越幹事会社へ要相談 その他月額はコワーキングスペース使用料(税込) LDKへのエアコン設置不可 駆付けサポート24借主加入 保証会社未使用時敷金2か月 ペット・楽器相談(諸条件弊社募集図面要確認) SOHO使用応相談(保証料要確認) 民泊不可 退去時:室内清掃・エアコン洗浄費借主負担 付属施設空状況要確認
更新日:
2026年04月10日
次回更新予定日:
2026年04月11日
  • ※掲載内容と現状が異なる場合には現状を優先いたします。
  • ※仲介物件の場合は、価格の他に仲介手数料が必要です。(仲介手数料には消費税及び地方消費税がかかります。)
  • ※掲載の物件は売却済・売却中止・価格変更となる場合もございますので、予めご了承ください。

三菱地所ハウスネット株式会社
本社:東京都新宿区北新宿2-21-1 新宿フロントタワー32F
国土交通大臣(6)第6019号 所属団体:(一社) 不動産流通経営協会会員 (公社) 首都圏不動産公正取引協議会加盟

地図・周辺情報

※実際の物件所在地とは異なる場合や最新情報に更新されていない場合がございます。

お問い合わせ