88,800円
礼金無・フリーレント賃料1か月 個人のみ※1月末申込分迄
フリーレント(1ヶ月)
個人のみ/1月末申込分迄/短期違約金有/

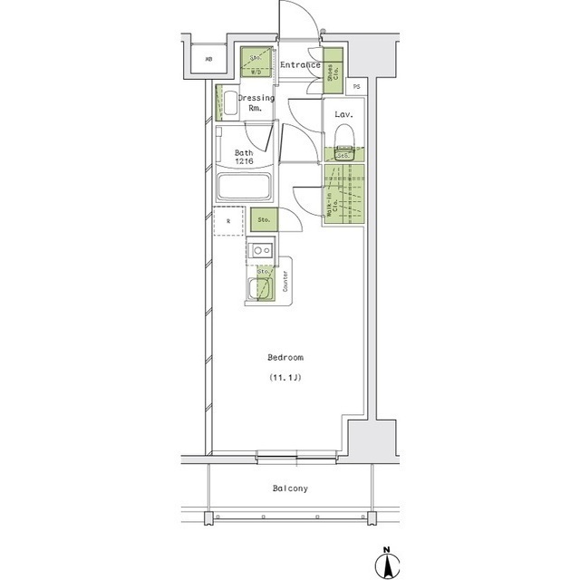
1R
専有面積:29.56m²(8.94坪)
物件番号: H00826000231
営業時間:9:30~18:00
定休日:毎週水曜日および第1、第3火曜日











このマンションは
三菱地所グループが手がけた物件です
物件番号: H00826000231
営業時間:9:30~18:00
定休日:毎週水曜日および第1、第3火曜日
更新日:2026年01月11日 次回更新予定日:2026年01月12日
三菱地所ハウスネット株式会社
本社:東京都新宿区北新宿2-21-1 新宿フロントタワー32F
国土交通大臣(6)第6019号 所属団体:(一社) 不動産流通経営協会会員 (公社) 首都圏不動産公正取引協議会加盟
物件番号: H00826000231
営業時間:9:30~18:00
定休日:毎週水曜日および第1、第3火曜日

7.38万円 1R 29.56㎡
9階 南向き

7.38万円 2K 28.68㎡
9階 南向き

7.08万円 1K 27.23㎡
11階 北向き

8.88万円 1K 26.92㎡
12階 南向き

12.48万円 1LDK 43.36㎡
4階 南向き
確かな実績ときめ細かい対応で、三菱地所の住まいリレーが
不動産の賃貸活用をサポートいたします。まずはお気軽にご相談ください。
三菱地所レジデンスの
リノベーション
「三菱地所レジデンスのリノベーション」とは、三菱地所レジデンスが売主となり、
中古マンションに新築のノウハウを生かした
メンテナンス・リフォーム・自社基準のチェックなどを行い、
アフターサービスを付加し、バリューアップしたのちに販売する同社の事業名称です。



