ROOM PLAN 1K(21戸)・1LDK(18戸)・2LDK(3戸)

シングルからファミリーまで。ライフスタイルで選べる7つのプラン。

type A 1K 専有面積:25.13m²(7.60坪) バルコニー面積:4.83m² ※図面と現況に相違がある場合は、現況を優先します。

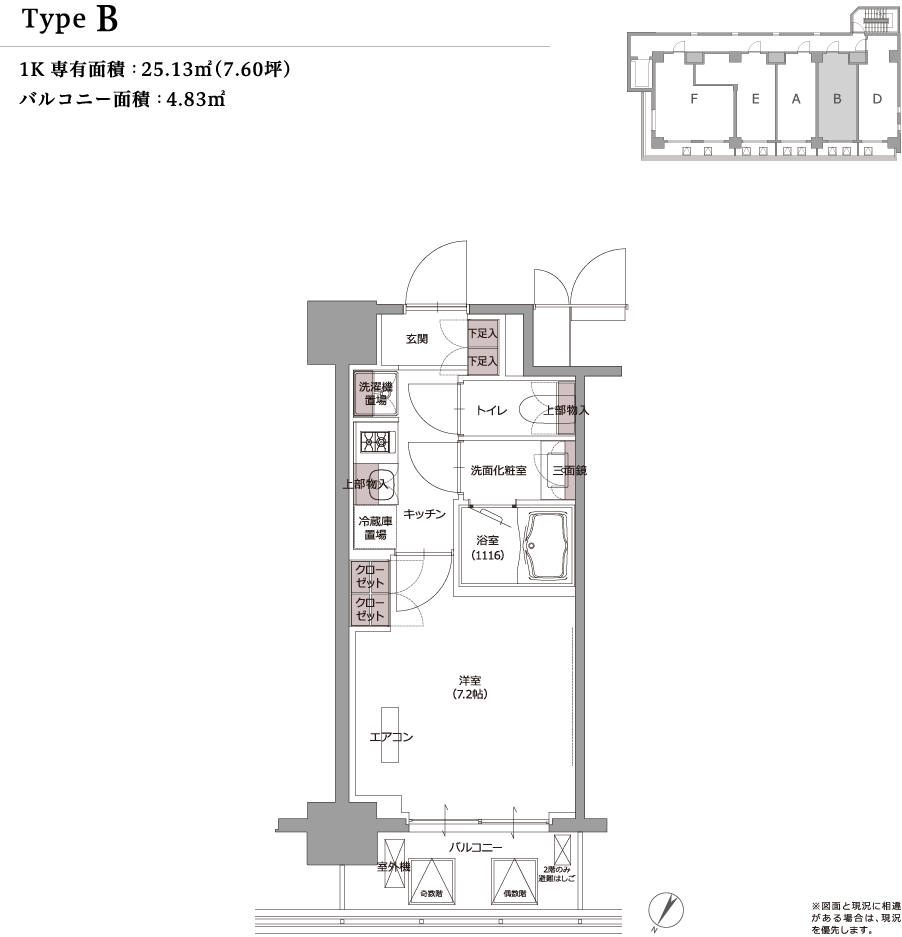
type B 1K 専有面積:25.13m²(7.60坪) バルコニー面積:4.83m² ※図面と現況に相違がある場合は、現況を優先します。

type C 1K 専有面積:25.13m²(7.60坪) バルコニー面積:3.79m² ※図面と現況に相違がある場合は、現況を優先します。

type D 1K 専有面積:29.31m²(8.86坪) バルコニー面積:4.43m² ※図面と現況に相違がある場合は、現況を優先します。

type E 1LDK 専有面積:33.89m²(10.25坪) バルコニー面積:4.83m² ※図面と現況に相違がある場合は、現況を優先します。

type F 1LDK 専有面積:41.50m²(12.55坪) バルコニー面積:14.86m² ※図面と現況に相違がある場合は、現況を優先します。

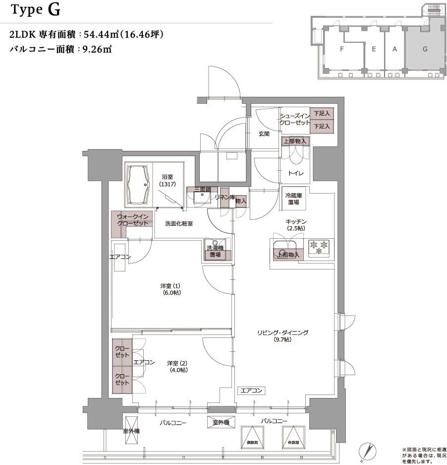
type G 2LDK 専有面積:54.44m²(16.46坪) バルコニー面積:9.26m² ※図面と現況に相違がある場合は、現況を優先します。